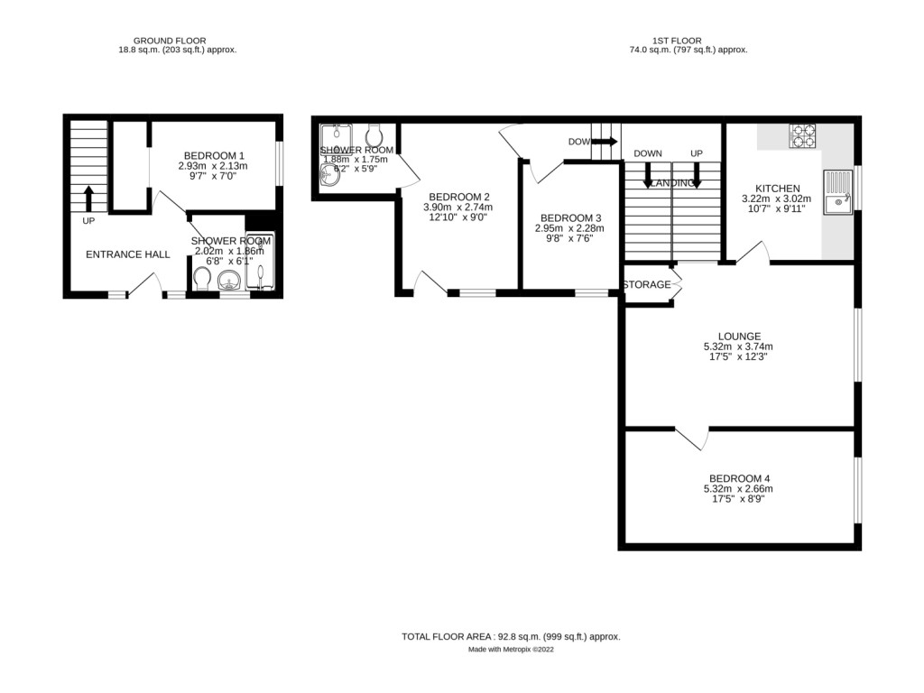
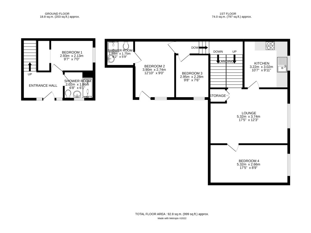
A furnished four bedroom student house located on Ambra Vale West in Cliftonwood.
The property comprises a good sized living / dining room, separate modern kitchen, four double bedrooms ( one with an en-suite shower room ) and an additional modern shower room.
Please note that this property is available immediately. Groups of professionals will be considered.
A furnished four bedroom student house located on Ambra Vale West in Cliftonwood. Please note that this property is available immediately.
For further details on this property please give our office a call 0117 923 7316
Simply fill out the form below or alternatively call us on 0117 923 7316
Rented with Antjam for two years as a student and they are great! I was always able to reach them by email or phone. They are so friendly and have gone above and beyond to fix some issues we had. Would definitely recommend!
Francesca
I've let my property through Anthony James & Co. ever since I acquired it back in 1997 and have been extremely happy with their service during these past 24 years. I highly recommend Anthony James & Co and I am happy to have them continue to manage my property going forward.